Jump to content
Melde dich an, um diesem Inhalt zu folgen  
zhou

Smart 450 Facelift > Oldliner Umbau: Kurze Frage Elektrik Pins

Empfohlene Beiträge

Hey, habe einen 450 facelift und einen regulären 450. Nun bricht mir das Plastik der Panele immer mehr von dem normalen (oldliner) weg, sodass ich die Front und Stoßstange hinten von dem Facelift (dient aktuell als Spenderfahrzeug) auf den oldliner bauen möchte.

 

Soweit ich das sehe habe ich alles da, weil ich beide Fahrzeuge bei mir habe.

Zitat

Brauchen tust du die Panels und Scheinis, Z-Schiene mit Dichtung, Schwellerecken vorne, Spoiler vorne und den Repsatz für die Scheinis.

Sollte ich alles da habe. Was ist ein Repsatz für die Scheinwerfer?

 

Was ich bemerkt habe ist nur, dass die Facelift Scheinwerfer nicht die selben Pins haben wie die "oldliner" Scheinwerfer . Also einfach umstecken ist nicht. Wie lässt sich das umlöten? Leider finde ich keine Anleitung mehr dafür (das PDF was es mal dafür gab ist offline). Habe ich noch etwas vergessen?

 

 

Diesen Beitrag teilen


Link zum Beitrag
Auf anderen Seiten teilen

Ein Adapter am "oldliner" Scheinwerfer hat 3-Pin und der Facelift hat 5-Pin. Kennt jemand die Lösung hierfür?

 

Wofür wird der "Reparatur-Satz" benötigt?

sw.jpg

bearbeitet von zhou

Diesen Beitrag teilen


Link zum Beitrag
Auf anderen Seiten teilen

Moin, da mußt du mal in den Schaltplan gucken. Der Oldliner hat wohl einen einzelnen Stecker für die H4 Lampe und für den Motor der LWR. Bei dem FL Modell mit dem Erdnußaugen wird der Scheinwerfer über einen Stecker verbunden. Da wird im Scheinwerfer die Masseleitung auf die LWR und die Lampen aufgeteilt. Wie wird denn das Standlicht im Oldliner "versorgt" auch über diesen kleinen Stecker? Ich habe hier nur Erdnüsse. 😇

 

 

bearbeitet von Silberkugel450

Platz ist in der kleinsten Hütte (Garage) 😇

 

Unbenannt.jpg

Diesen Beitrag teilen


Link zum Beitrag
Auf anderen Seiten teilen

ich habe das bei meinem gemacht.

Bei meinem 2000er Bj waren die fahrerseitigen Kabelfarben identisch mit den Kabeln von den Facelift Scheinwerfern (Erdnuß) Aber auf der Beifahrerseite nicht. Da sind die Farben anderst.

Jedoch kannst du dann an dem anderen abkucken wie die Belegung vom Stecker ist und es auf die Beifahrerseite übertragen. Alle braunen Kabel sind Massekabel ...die kannste zusammen legen.

Ich habe die Stecker vom Facelift Spenderfahrzeug abgeschnitten ...so lang die Kabel dran gelassen wie es geht. Glaub so 15-20 cm .... dann die Stecker vom 2000er ( Mandeldinger) abgeschnitten und die neuen dann dran gelötet und Schrumpfschlauch mit Kleber drinnen dicht gemacht... Kabel schön verlegen

Die neue Front past nicht mit dem Unterboden zusammen. Den kannste dann auch noch tauschen. Oder so lassen und dann musste was basteln unten rum vorne. Die Kühlermaske past auch nicht gescheid. Die Lüftungen sind versetzt. Fällt aber nicht weiter auf.

Bei meinem geht beim Aufblendlicht das Abblendlicht aus. Ich hab das so gelassen. Weil das Aufblendlicht H1 voll hell genug ist. Da müsste man mit einem Relais Schaltung was machen. Aber ich habs so gelassen und geht auch so.

Insgesamt eine ziemliche fummelei und ich habe da 2 Tage drann gesessen... Jedoch hab ich wegen der Farbe alle Panels getauscht.

Scheinwerfer dann einstellen lassen

bearbeitet von Smart911a

andreasma

Diesen Beitrag teilen


Link zum Beitrag
Auf anderen Seiten teilen
vor einer Stunde schrieb Silberkugel450:

Moin, da mußt du mal in den Schaltplan gucken. Der Oldliner hat wohl einen einzelnen Stecker für die H4 Lampe und für den Motor der LWR. Bei dem FL Modell mit dem Erdnußaugen wird der Scheinwerfer über einen Stecker verbunden. Da wird im Scheinwerfer die Masseleitung auf die LWR und die Lampen aufgeteilt. Wie wird denn das Standlicht im Oldliner "versorgt" auch über diesen kleinen Stecker?

 

Beim Mandelauge haben alle Teile im Scheinwerfer einzelne Stecker. Die LWR, das Standlicht, der Blinker, der Scheinwerfer/H4.


705 Kilometer mit 19,43 Litern sind 2,75 Liter/100 Km.

Diesen Beitrag teilen


Link zum Beitrag
Auf anderen Seiten teilen

genau...und die Erdnußscheinwerfer haben einen .für H7 und H1 ..und einen für Blinker.. Die Verkabelung für H1 H2 und Standlicht ist im Scheinwerfer drinnen verlegt. Auch die Steuerung des Verstellmotors

bearbeitet von Smart911a

andreasma

Diesen Beitrag teilen


Link zum Beitrag
Auf anderen Seiten teilen

bei der H4 Birne geht entweder Abblend oder Aufblendlicht an nie beides. Deßhalb ist das dann auch so beim Umbau


andreasma

Diesen Beitrag teilen


Link zum Beitrag
Auf anderen Seiten teilen
vor 10 Minuten schrieb Smart911a:

bei der H4 Birne geht entweder Abblend oder Aufblendlicht an nie beides.

 

Genau so ist es, sonst wäre der Glühbirne vermutlich kein langes Leben beschieden! 😉

Diesen Beitrag teilen


Link zum Beitrag
Auf anderen Seiten teilen

und der Drehschalter hätte 230W drauf ... was man beachten sollte wenn man es so umbaut daß beide brennen. Das geht dann nur über eine Ralaischaltungs gebaschdäl😃


andreasma

Diesen Beitrag teilen


Link zum Beitrag
Auf anderen Seiten teilen

Die schaltlogik lässt sich meines Erachtens in der ZEE mit Vediamo codieren. 


Smart 450 Cabrio 2002 599 71 PS 

Smart 451 2007 Turbo Cabrio 115 PS 

Seres 3 

 

 

 

Diesen Beitrag teilen


Link zum Beitrag
Auf anderen Seiten teilen
vor 18 Minuten schrieb maxpower879:

Die schaltlogik lässt sich meines Erachtens in der ZEE mit Vediamo codieren. 

 

Bei einem ZEE Smart gibt es ja keine Schaltlogik über Relais, weil sowohl das Abblendlicht als auch das Fernlicht direkt über den Lichtschalter geschaltet werden. Eine gesteuerte Schaltlogik über Relais in der Zentralelektrik gibt es ja erst über das SAM!

bearbeitet von Ahnungslos

Diesen Beitrag teilen


Link zum Beitrag
Auf anderen Seiten teilen
vor 25 Minuten schrieb Ahnungslos:

über Relais in der Zentralelektrik gibt es ja erst über das SAM!

genau... eine selber gebastelde Schaltung wäre aber einigermasen einfach umzusetzen. Jedoch die Kabelfarben sind unterschiedlich Fahrer und Beifahrerseite...das muss man beachten


andreasma

Diesen Beitrag teilen


Link zum Beitrag
Auf anderen Seiten teilen
vor 15 Stunden schrieb Silberkugel450:

Wie wird denn das Standlicht im Oldliner "versorgt" auch über diesen kleinen Stecker? Ich habe hier nur Erdnüsse. 😇

Da bin ich aktuell überfragt. Soweit ich das gesehen habe, ist bei beiden alles im Scheinwerfer-Kabelbaum drin verbaut. Es wird lediglich dieser 3-Pin und 5-Pin stecker angesteckt...?


Das Bild was ich oben gepostet habe, zeigt das, was ich meine.

 

vor 14 Stunden schrieb Smart911a:

ch habe die Stecker vom Facelift Spenderfahrzeug abgeschnitten ...so lang die Kabel dran gelassen wie es geht. Glaub so 15-20 cm .... dann die Stecker vom 2000er ( Mandeldinger) abgeschnitten und die neuen dann dran gelötet und Schrumpfschlauch mit Kleber drinnen dicht gemacht... Kabel schön verlegen

Genau so habe ich es mir gedacht. Also alles super "einfach". Stecker mit Kabel komplett abscheiden und jeweils tauschen 😄 Die Mandelaugen kommen an den Facelift und die Erdnüsse an den Oldliner.

 

vor 13 Stunden schrieb Ahnungslos:

 

Genau so ist es, sonst wäre der Glühbirne vermutlich kein langes Leben beschieden! 😉

Hey, "Ahnungslos" kenne ich vom lesen hier vom Namen her 😄 Freue mich, dass du im Beitrag dabei bist. Danke auch an alle anderen hier!

bearbeitet von zhou

Diesen Beitrag teilen


Link zum Beitrag
Auf anderen Seiten teilen
vor 1 Stunde schrieb zhou:

Die Mandelaugen kommen an den Facelift und die Erdnüsse an den Oldliner.

nein ..das geht nicht.. die Front ist doch total anderst

bearbeitet von Smart911a

andreasma

Diesen Beitrag teilen


Link zum Beitrag
Auf anderen Seiten teilen
vor 7 Stunden schrieb Ahnungslos:

 

Bei einem ZEE Smart gibt es ja keine Schaltlogik über Relais, weil sowohl das Abblendlicht als auch das Fernlicht direkt über den Lichtschalter geschaltet werden. Eine gesteuerte Schaltlogik über Relais in der Zentralelektrik gibt es ja erst über das SAM!

Grundsätzlich ja aber dann müsste es ja 2 verschiedene Lichtschalter geben. 

Bzw sogar 4! 

Blau Vormopf (H4 nur ein Kanal bei Fernlicht) und blau Cabrio ( H7 + H1 2 Kanäle bei Fernlicht) 

Grau Vormopf (H4)  und grau Mopf ( H7 + H1)

Soweit ich weiß ist das aber nicht der Fall. Zumindest der graue Schalter ist immer der Gleiche. 

Beim Blauen denke ich ebenfalls, dass es nur den Einen gibt.

Müsste ich die Schaltpläne und EPC durchforstet wo genau die H4 / H7 + H1 Unterschiede liegen, im Lichtschalter meines Wissens nach nicht. 

bearbeitet von maxpower879

Smart 450 Cabrio 2002 599 71 PS 

Smart 451 2007 Turbo Cabrio 115 PS 

Seres 3 

 

 

 

Diesen Beitrag teilen


Link zum Beitrag
Auf anderen Seiten teilen

Jetzt wo Du es sagst, fällt mir ein, daß wir dieses Thema erst letztens hier hatten.

Es gibt natürlich nicht vier verschiedene Lichtschalter, nur deren zwei. Nämlich grau oder blau.

Für die Erdnussscheinwerfer beim Cabrio und Facelift-Coupe mit ZEE, also vor 2003, wurde dies tatsächlich mit einer Relaisschaltung realisiert, deren Relais unter dem Kombiinstrument platziert waren. 

Aber wie diese Relais angesteuert wurden, weiss ich jetzt nicht mehr, evtl. direkt vom Lichtschalter, wobei in der Fernlichtstellung eine Leitung zum Relais des Abblendlichts führte und dafür sorgte, daß dieses bei Fernlicht ebenfalls weiter leuchtete. Es war meines Wissens keine Ansteuerung über die ZEE.

Allerdings weiss ich es jetzt nicht genau, aber in dem Beitrag war sogar der Schaltplan dabei.

Ich finde ihn allerdings gerade nicht mehr! 🙁

bearbeitet von Ahnungslos

Diesen Beitrag teilen


Link zum Beitrag
Auf anderen Seiten teilen
vor 57 Minuten schrieb Ahnungslos:

Ich finde ihn allerdings gerade nicht mehr! 

 

Schau mal in deiner PN-Box am 27.Mai nach :classic_smile:

Diesen Beitrag teilen


Link zum Beitrag
Auf anderen Seiten teilen
vor 29 Minuten schrieb 450-3:

Schau mal in deiner PN-Box am 27.Mai nach :classic_smile:

 

Stimmt, jetzt wo Du es sagst! 😄

Wusste ich es doch, daß ich den irgendwo gesehen hatte! 😉

Das war nicht in einem Beitrag, sondern in einer PN mit Dir!

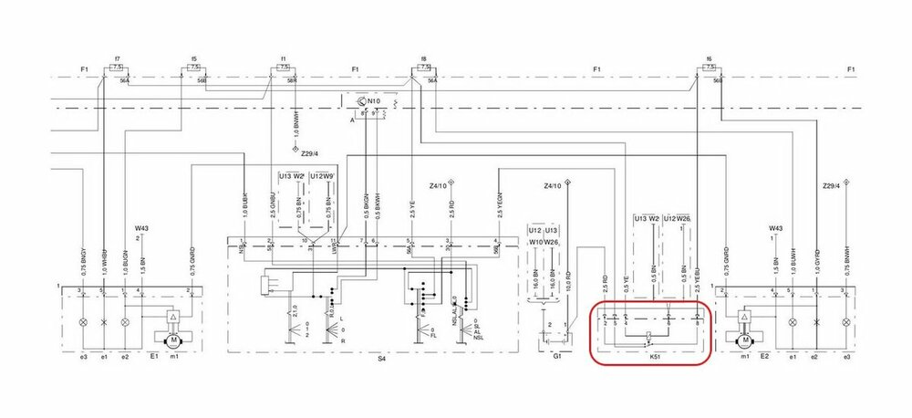
Den Schaltplan hat mir 450-3 freundlicherweise zur Hilfe in einem Beitrag zur Verfügung gestellt. 🙂

In dem unten stehenden Schaltplan ist zu sehen, daß bei Fahrzeugen mit ZEE und Erdnußscheinwerfern, also dem Cabrio und Facelift Coupe vor 2003, ein zusätzliches Relais unter dem Kombiinstrument verbaut ist, daß dafür sorgt, daß bei Fernlicht und Lichthupe beide Lampen, also die H7 des Abblendlichts und die H1 des Fernlichts gemeinsam leuchten. 

Es hat also nix mit einer Programmierung oder Ansteuerung der ZEE zu tun, sondern das ist eine rein hardwaretechnische Lösung.

Wie ich schon geschrieben habe, es gibt natürlich nur zwei verschiedene Lichtschalter für den 450er Smart, blau oder grau!

 

Nichtsdestotrotz schaltet bei dieser Schaltung der Lichtschalter den vollen Strom des Abblendlichts, es ist also nicht so wie beim SAM Smart, daß über den Lichtschalter nur die Steuerströme für den Eingang am SAM fließen, das sind nur ein paar Milliampere und der eigentliche hohe Lampenstrom des Abblendlichts und des Fernlichts dann über die Relais im SAM geschaltet wird. 

Das war nur eine Zwischenlösung, um beide Lampen der Erdnüsse gleichzeitig leuchten lassen zu können, aber im Prinzip keine Entlastung des Lichtschalters bzw. nur in so weit, daß bei Fernlicht nicht der gesamte Lampenstrom für Abblendlicht und Fernlicht darüber fließen muss, was ihn noch schneller getötet hätte!

Das hat ja Smart911a schon ganz richtig erkannt:

 

vor 21 Stunden schrieb Smart911a:

und der Drehschalter hätte 230W drauf ... was man beachten sollte wenn man es so umbaut daß beide brennen. Das geht dann nur über eine Ralaischaltungs gebaschdäl😃

 

 

Relais K51.jpg

Lichtsteuerung.jpg

bearbeitet von Ahnungslos

Diesen Beitrag teilen


Link zum Beitrag
Auf anderen Seiten teilen
vor 23 Stunden schrieb Smart911a:

Bei meinem geht beim Aufblendlicht das Abblendlicht aus. Ich hab das so gelassen. Weil das Aufblendlicht H1 voll hell genug ist. Da müsste man mit einem Relais Schaltung was machen.

Aber ich habs so gelassen und geht auch so.

 

Das würde ich in diesem Sonderfall genauso sehen. Es müssen nicht unbedingt bei Fernlicht beide Glühlampen zusammen leuchten.

Zumindest wäre es mit einem gewissen Aufwand verbunden, die oben abgebildete Relaislösung einzubauen.

Und a bissle mit Elektronen auskennen sollte man sich dabei schon auch, da es keine Plu&Play Lösung gibt. 😉

bearbeitet von Ahnungslos

Diesen Beitrag teilen


Link zum Beitrag
Auf anderen Seiten teilen
vor 7 Stunden schrieb Smart911a:

nein ..das geht nicht.. die Front ist doch total anderst

Hä, wieso nicht? Sieht irgendwie aus als würde es passen. Hatte beide mal abgebaut nebeneinander und die Befestigungslöcher (Türrahmen) sind identisch gewesen. Also hatte eigentlich vor die komplette front von A nach B und B nach A zu tauschen. Das einzige Problem was ich gesehen habe waren die Scheinwerferkabelsätze.

 

Anbei mal ein Bild meiner zwei "vorne ohne".

gruenblau.png

Diesen Beitrag teilen


Link zum Beitrag
Auf anderen Seiten teilen
vor einer Stunde schrieb Ahnungslos:

Und a bissle mit Elektronen auskennen sollte man sich dabei schon auch

ja und das kann ich halt nicht. Ich lasse das mal so...es ist wirklich so dass das Aufblendlicht so hell ist mit H1 das dies voll reicht.

Vielleicht mal später kuk ich mir das mal beim Cabrio an. Wuste nicht das der das schon mit Relais gelöst hat.


andreasma

Diesen Beitrag teilen


Link zum Beitrag
Auf anderen Seiten teilen

Ach so ..wenn du Maske mit Scheinwerfer tauschen tust ...klar das geht.

Bis auf:

Die Kühlermaske past nicht richtig ...unten an den 2 seitlichen Ohren...kann man aber lassen....der Unterboden Frontanschluss an Maske past auch nicht... muss man was basteln..

Die kleinen Eckschwellerteile passen nicht müssen auch getauscht werden.

Ob das dann mit der Tür passt weis ich nicht. Ich hatte die Türpanele auch vom Facelift.

Und das mit den Kabeln der Scheinwerfer


andreasma

Diesen Beitrag teilen


Link zum Beitrag
Auf anderen Seiten teilen
vor 7 Minuten schrieb Smart911a:

Ach so ..wenn du Maske mit Scheinwerfer tauschen tust ...klar das geht.

Bis auf:

Die Kühlermaske past nicht richtig ...unten an den 2 seitlichen Ohren...kann man aber lassen....der Unterboden Frontanschluss an Maske past auch nicht... muss man was basteln..

Die kleinen Eckschwellerteile passen nicht müssen auch getauscht werden.

Ob das dann mit der Tür passt weis ich nicht. Ich hatte die Türpanele auch vom Facelift.

Und das mit den Kabeln der Scheinwerfer

Ja, genau. Ich wollte alles tauschen. Das Problem ist, die komplette Front vom grünen wurde mal mit Glasfaser "repariert" und fällt nun komplett auseinander. Wollte die blaue Front (wegen Ersatzteilspenderfahrzeug) auf den grünen und in der Freizeit dann die grüne Front wieder reparieren/aufbauen.

 

Aber habe schon gemerkt, dass es schon einige Unterschiede gibt. Die Anschlüsse der Klimaanlage z.B., beim blauen FL sind die zwei Anschlüsse einfach hinter dem vorderen Lüftergitter. Beim grünen finde ich dort nur einen Anschluss. Basteln klingt gut.

 

Unterboden und alles andere kann ich gerne basteln.

 

Was genau meinst du mit "Eckschwellerteile"?

bearbeitet von zhou

Diesen Beitrag teilen


Link zum Beitrag
Auf anderen Seiten teilen

ich meine die untere Schwellerverkleidung...ich glaube das past vorne nicht. Weis aber nimmi genau


andreasma

Diesen Beitrag teilen


Link zum Beitrag
Auf anderen Seiten teilen

das 2 Komponenten Glasfaserzeug hebt auf dauer bei diesem Kunststoff sowieso nicht. Nimm

 

Kunststoff schweiß Klammern

 

das hält

oder ein 2mm Stahlfliegengitter heiß ..(glühend)machen und hinten drauf---und mit lötkolben zusammenbabben

bearbeitet von Smart911a

andreasma

Diesen Beitrag teilen


Link zum Beitrag
Auf anderen Seiten teilen

Erstelle ein Benutzerkonto oder melde dich an, um zu kommentieren

Du musst ein Benutzerkonto haben, um einen Kommentar verfassen zu können

Benutzerkonto erstellen

Neues Benutzerkonto für unsere Community erstellen. Es ist einfach!

Neues Benutzerkonto erstellen

Anmelden

Du hast bereits ein Benutzerkonto? Melde dich hier an.

Jetzt anmelden
Melde dich an, um diesem Inhalt zu folgen  

  • Aktuell beliebt

  • Der letzte Post

    • Laut der verlinkten Kurzanleitung im Shop ist ein Nockenwellensensor erforderlich (am Ende sind auch noch ein paar Pläne aus dem WIS angehängt nach denen der OM611 so einen Sensor hat).         Hui, das ist ja mal ein stolzer Preis aber für Spezialhardware abseits vom Massenmarkt wohl zu erwarten, wenn man eine professionelle Lösung braucht.  
  • Forenstatistik

    • Themen insgesamt
      152.891
    • Beiträge insgesamt
      1.610.350
×
×
  • Neu erstellen...

Wichtige Information

Wir haben Cookies auf Ihrem Gerät platziert, um die Bedinung dieser Website zu verbessern. Sie können Ihre Cookie-Einstellungen anpassen, andernfalls gehen wir davon aus, dass Sie damit einverstanden sind.