Jump to content

Empfohlene Beiträge

Hallo zusammen,

poste seit langem mal wieder was (bislang lief eigentlich alles), aber hier weiss ich so recht weiter. SAM defekt oder überseh ich was

450er CDI 2004 ist während der Fahrt einfach ausgegangen und lässt sich nicht wieder starten. OK, gibt ja zig threads hier zu dem dem Thema.

Also das Auto heim geholt und mal geschaut

Dieselpumpe im Tank läuft nicht und bekommt keinen Strom. Drehzahlmesser bewegt sich beim Startversuch, also nicht OT Geber (auch nicht schlecht, liegt echt bescheiden). Masseband am Motor auch gut.

Stecker 11-3 am SAM sieht gut aus, auch der Pin. Nichts verschmort. Hab dann den Kontakt 10 aus dem Stecker gelöst und direkt mit Batteriespannung versorgt. Smart ist sofort angesprungen. Aber nach ein paar Metern geht er aus, schaltet auch nicht hoch in den 2.

Als meine Frau damit stehen geblieben ist, hat sie gesagt, beim 2. Startversuch hat er nicht mehr gedreht. Gut, Batterie ist nicht mehr die jüngste. Also heute ne neue eingebaut, aber tatsächlich, beim 2. oder 3. Starten mit überbrücktem 11-3 Pin 10 sackt die Batterie auf unter 6V ab, erholt sich aber sofort wieder. Nächste Batterie eingebaut und genau das gleiche.

SAM hab ich aufgemacht, sieht gut aus, auch nicht nass geworden. Definitiv keine kalten Lötstellen, schon gar nicht an Stecker 11-3. Fast schon zu gut für das Alter. Aber ich bekom keinen Strom auf Pin 10.

Ach ja, Anlasser und Lima sind vor nem halben Jahr neu.

Kann es sein, dass ein defektes SAM eine Batterie leer saugt?

Es kommt dickes rotes Plus am SAM an, an PIN 10 geht aber nix raus (Sicherung 16 ok), kann doch eigentlich nur am SAM liegen. Oder überseh ich hier was naheliegendes?

Austausch SAM ist ja nicht so einfach, hab keine Star zum anlernen. Also eher reparieren lassen? nur wo?

 

Vielen Dank für eure Hilfe

Oliver

 

Diesen Beitrag teilen


Link zum Beitrag
Auf anderen Seiten teilen
vor einer Stunde schrieb oli-e:

Dieselpumpe im Tank läuft nicht und bekommt keinen Strom.

 

Für die Kraftstoffpumpe ist im SAM nur das Relais k4 und die Sicherung 16 zuständig. Die Ansteuerung erfolgt durch das Motorsteuergerät, das über eine Leitung an Stecker 5 Pin 1 (Schwarz/Pink) vom SAM den Steuerkreis des Relais auf Masse zieht und so die Pumpe einschaltet. So ist es zumindest im Schaltplan zu sehen.

 

Wenn du den Pin selbst auf Masse legst, müsste das Relais klacken und Spannung an Stecker 3 Pin 10 anliegen. Dann kannst du noch an Stecker 5 Pin 1 schauen, ob das Motorsteuergerät wirklich das Relais einschaltet und spätestens jetzt sollte klar sein, ob die Fehlersuche weiter in Richtung Kraftstoffpumpe geht oder nur die Ansteuerung Probleme macht.

bearbeitet von 450-3

Diesen Beitrag teilen


Link zum Beitrag
Auf anderen Seiten teilen

Wenn man SAM, Schlüssel, MSG und Kombi als zusammenhängend aus einem Spender verbaut geht das.

Alternativ anlernen mit Stardiagnose...

Diesen Beitrag teilen


Link zum Beitrag
Auf anderen Seiten teilen
vor 9 Stunden schrieb 450-3:

Dann kannst du noch an Stecker 5 Pin 1 schauen, ob das Motorsteuergerät wirklich das Relais einschaltet und spätestens jetzt sollte klar sein, ob die Fehlersuche weiter in Richtung Kraftstoffpumpe geht oder nur die Ansteuerung Probleme macht.

 

Bist Du Dir sicher mit dem Pin 1, Könnte auch ein Darstellungsfehler im Stromlaufplan sein!

Gemäß dieser Seite müsste es sich nämlich um den Pin 11 handeln!

Und laut den mir vorliegenden Stromlaufplan ebenfalls. 🙂

Siehe dazu auch die Steckerbelegung des Motorsteuergeräts auf jener Seite.

Das ist mir auch schon mal passiert, die Darstellung in den Stromlaufplänen ist nämlich grottig schlecht.

 

Bei einer Messung dieses Signals muss natürlich unbedingt beachtet werden, daß es, wie 450-3 schon beschrieben hat, lo aktiv ist!

D.h. wenn Du dort 12 Volt misst, dann ist das der inaktive Zustand, mit dem keine Kraftstoffpumpe angesteuert wird! ⚠️

Um das Relais K4 der Kraftstoffpumpe anzusteuern, siehe die Relaisbestückung auf dieser Seite, ist auf dieser schwarz/pinken Leitung ein Signalpegel nahe 0 Volt erforderlich! In der Regel sind das 0,6 bis 0,7 Volt.

 

Was mich ins Schleudern bringt, ist die Sache mit der Batterie!

Eine voll geladene Batterie kann durch den Anlasser eigentlich nicht auf 6 Volt gebracht werden, außer, der Anlasser wird durch irgendwas blockiert und stellt dadurch quasi einen Kurzschluss dar!

bearbeitet von Ahnungslos

Diesen Beitrag teilen


Link zum Beitrag
Auf anderen Seiten teilen

vielen Dank für eure Antworten, das ist mehr als hilfreich.

 

war mein Gefühl doch nicht falsch, dass ich was überseh

 

vor 11 Stunden schrieb 450-3:

Wenn du den Pin selbst auf Masse legst, müsste das Relais klacken und Spannung an Stecker 3 Pin 10 anliegen. Dann kannst du noch an Stecker 5 Pin 1 schauen, ob das Motorsteuergerät wirklich das Relais einschaltet und spätestens jetzt sollte klar sein, ob die Fehlersuche weiter in Richtung Kraftstoffpumpe geht oder nur die Ansteuerung Probleme macht.

Ah, das ist das was ich überseh, das Signal vom Steuergerät. Hab mich da wohl von verschiedenen Beiträgen in die Irre leiten lassen, die vorgeschlagen haben den PIN 10 direkt mit einem Relais auf Zündspannung zu legen (nicht so mein Ding). So bin ich davon ausgegangen, dass Relais K4 einfach mit Zündung geschaltet wird.

Also erfolgt doch eine Steuerung durch das Steuergerät im Motor.

 

Kraftstoffpumpe kann ich ausschliessen, die läuft wenn man sie extern mit Strom versorgt, Auch die Leitung vom SAM zur Pumpe ist ok, kein Kabelbruch, ebenso Sicherung 16

Relais K4 ist ja auf der SAM verlötet, das konnt ich so nicht prüfen als ichs offen gehabt hab.

 

vor 11 Stunden schrieb 450-3:

Wenn du den Pin selbst auf Masse legst, müsste das Relais klacken und Spannung an Stecker 3 Pin 10 anliegen. Dann kannst du noch an Stecker 5 Pin 1 schauen, ob das Motorsteuergerät wirklich das Relais einschaltet und spätestens jetzt sollte klar sein, ob die Fehlersuche weiter in Richtung Kraftstoffpumpe geht oder nur die Ansteuerung Probleme macht.

OK, werd später mal 11-5 PIN 1 am SAM auf Masse brücken und schauen, ob dann Strom auf 3-10 kommt.

 

vor 11 Stunden schrieb Outliner:

Wenn man SAM, Schlüssel, MSG und Kombi als zusammenhängend aus einem Spender verbaut geht das.

Alternativ anlernen mit Stardiagnose...

dashab ich befürchtet, also eher anlernen lassen. Je nachdem wie lange sich die Fehlersuche zieht, muss ich wohl zu Benz damit. Kenn zwar einen Mercedes-Techniker mit einer Star, der ist aber 4 Wochen im Ausland. Na, ja, das anlernen ist nicht so tragisch, nur bei uns hier einen Termin zu bekommen. Aber erstmal den Fehler finden...

 

vor 3 Stunden schrieb Ahnungslos:

Bist Du Dir sicher mit dem Pin 1, Könnte auch ein Darstellungsfehler im Stromlaufplan sein!

Gemäß dieser Seite müsste es sich nämlich um den Pin 11 handeln!

Und laut den mir vorliegenden Stromlaufplan ebenfalls. 🙂

Kann ich nachher ja einfach prüfen, dann müsste PIN 1 ja unbelegt sein.

Oh mann, ich war gestern auf der Seite, hab aber nur nach 11-3 geschaut. Wobei mir grad hier auffällt dass bei mir 11-3 PIN 12 unbelegt ist im Gegensatz zu der Beschreibung.

 

vor 3 Stunden schrieb Ahnungslos:

Bei einer Messung dieses Signals muss natürlich unbedingt beachtet werden, daß es, wie 450-3 schon beschrieben hat, lo aktiv ist!

D.h. wenn Du dort 12 Volt misst, dann ist das der inaktive Zustand, mit dem keine Kraftstoffpumpe angesteuert wird! ⚠️

Um das Relais K4 der Kraftstoffpumpe anzusteuern, siehe die Relaisbestückung auf dieser Seite, ist auf dieser schwarz/pinken Leitung ein Signalpegel nahe 0 Volt erforderlich! In der Regel sind das 0,6 bis 0,7 Volt.

ok, dann sollte ich da auf keinen Fall bei angeschlossenem Stecker auf Masse brücken.

Würde dann also zuerst mal bei abgezogenem Stecker den PIN 11 messen, ob 12 V oder eher 0 V anliegen

Finde in der Steckerbelegung von 11-5 keinen Grund, warum ich bei abgezogenem Steckert die Zündung einschalten sollte und dann PIN 11 auf Masse zu legen. Somit müsste dann 11-3 PIN 12 V ausgeben wenn alles passt.

vor 3 Stunden schrieb Ahnungslos:

Was mich ins Schleudern bringt, ist die Sache mit der Batterie!

Das kann ich mir auch momentan noch nicht erklären, Anlasser dreht sauber, und wenn ich die Pumpe extern mit Strom versorge, läuft der Kleine ja auch. Aber erstmal die Sache mit der Pumpe prüfen.

 

Nochmals vielen Dank für eure Antworten, ohne wär ich sicher in ne Sackgasse gelaufen.

 

ach ja, komm übrigens aus dem Raum Konstanz

Diesen Beitrag teilen


Link zum Beitrag
Auf anderen Seiten teilen

Hi Oli,
das Ausgehen in der Fahrt deutet oft auf gebrochene Lötstellen am N11-3 und N11-5 hin. Speziell der CAN-BUS Pin ist hier kritisch. Wenn da eine kurze Unterbrechung vorliegt, geht der Motor sofort aus. Je nach Wackelkontakt lässt er sich dann gleich oder später wieder starten und fährt erstmal wieder. Aber kann auch sein, dass er bald wieder ausgeht.
Du siehst die Löstellen nur wenn Du das SAM komplett zerlegst und die Platine auseinanderfaltest.
Und dann mit der Lupe schauen. 
Hast Du das so schon gemacht?

LG, Peter

Diesen Beitrag teilen


Link zum Beitrag
Auf anderen Seiten teilen

Hallo Peter,

 

11-3 hab ich geprüft, SAM war auseinander.

nur, wie oben beschrieben, hab ich die Sache mit dem 11-5 nicht bedacht, da eigentlich überall wo ich gelesen hab nur 11-3 genannt wird.

Also nochmal auseinanderfalten und 11-5 anschauen.

Glaub schon, dass ich kalte Lötstellen mit der Lupe erkennen kann, es bilden sich dann oft so minimale Ringe an der Lötstelle. 11-3 war ok

Einfach auf Verdacht nachlöten bringt glaub auch nichts

 

ist ne gute Idee, die Lötstellen an 11-5 zu prüfen, noch ein Punkt, den ich übersehen hab.

 

Werd später berichten wie´s weitergeht

Diesen Beitrag teilen


Link zum Beitrag
Auf anderen Seiten teilen
vor 42 Minuten schrieb kartfahrer:

Und dann mit der Lupe schauen.

 

vor 32 Minuten schrieb oli-e:

Glaub schon, dass ich kalte Lötstellen mit der Lupe erkennen kann, es bilden sich dann oft 

Kann sein. Oder auch nicht. Man sieht das nicht zwingend. 

vor 32 Minuten schrieb oli-e:

Einfach auf Verdacht nachlöten bringt glaub auch nichts

Doch. Genau das ist oft die Lösung.

 

Außerdem hält die Reparatur dann wieder 20 Jahre. Was nützt es dir, daß eine Lötstelle heute heil ist, aber in ein paar Monaten defekt. Dann hast du das Thema alle paar Monate wieder an der Backe. Eigentlich sollte man alle funktionierenden Sams aufmachen und porphy... profi... äh... vorbeugend nachlöten. 

bearbeitet von Funman

705 Kilometer mit 19,43 Litern sind 2,75 Liter/100 Km.

Diesen Beitrag teilen


Link zum Beitrag
Auf anderen Seiten teilen
vor einer Stunde schrieb oli-e:

OK, werd später mal 11-5 PIN 1 am SAM auf Masse brücken und schauen, ob dann Strom auf 3-10 kommt.

 

Kann ich nachher ja einfach prüfen, dann müsste PIN 1 ja unbelegt sein.

Oh mann, ich war gestern auf der Seite, hab aber nur nach 11-3 geschaut. Wobei mir grad hier auffällt dass bei mir 11-3 PIN 12 unbelegt ist im Gegensatz zu der Beschreibung.

 

Glaub mir, es ist der Pin 11 und nicht der Pin 1.

Ich habe verschiedene Unterlagen mit den Steckerbelegungen dieses Steckers N11-5.

Und sowohl auf dem originalen Schaltplan als auch auf einer anderen Unterlage ist diese Leitung explizit auf dem Pin 11 aufgelegt!

 

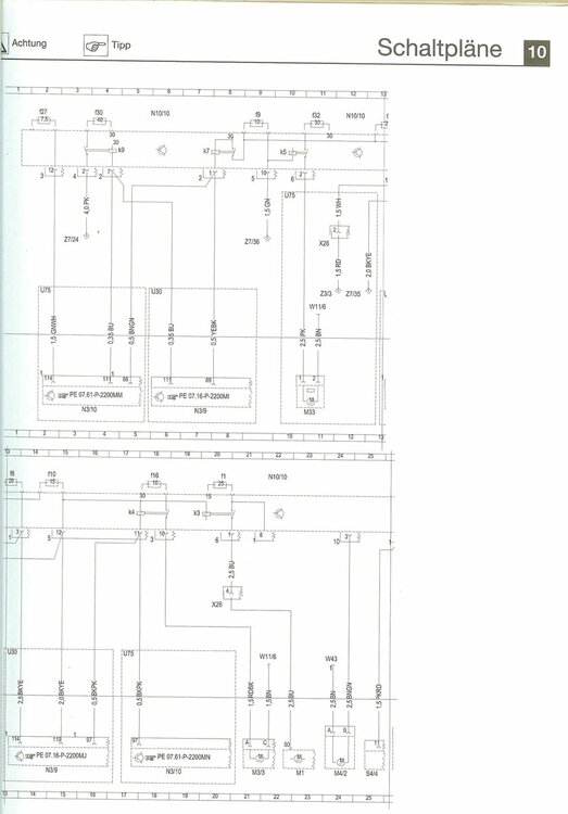
Unten habe ich mal den Plan aus den Originalschaltplänen beigefügt, ich hoffe mal, daß es darauf erkennbar ist.

 

Der Motor M3/3 unten rechts ist die Kraftstoffpumpe. Von der führt eine rot/schwarze Leitung nach oben zum Stecker N 11-3 Pin 10 und wird von dort mit Spannung versorgt.

Im SAM sieht man das Relais K4 gezeichnet, dessen Kontakt die Spannung für die Kraftstoffpumpe schaltet.

Unterhalb des K4 sieht man den Stecker N11-5 und über den Pin 11 wird das Relais K4 angesteuert.

Diese schwarz-pinke Leitung kommt vom Pin 97 des Motorsteuergeräts.

Allerdings kann man hier die zweite 1 der 11 auch leicht übersehen, weil die Leitungskreuzung dazu verleitet.

Die zwei Leitungen kommen dadurch zustande, weil drunter beide Steuergeräte, also des Benziners und des Diesels dargestellt sind.  Der Pin 97 am MEG ist aber beiden gemeinsam.

 

 

 

Smart.thumb.jpg.364bce62a0845f1fa6e7440969579b46.jpg

Diesen Beitrag teilen


Link zum Beitrag
Auf anderen Seiten teilen

Normalerweise sollte nix passieren, wenn Du den Pin 11 des Steckers N11-5, also die Schwarz-Pinke Leitung im Betrieb auf Masse legst.

Die 12 Volt auf dieser Leitung kommen ja nicht aus dem Motorsteuergerät, sondern über das Relais.

Im MEG ist ein Open Collector Treiberbaustein eingebaut, der diesen Pin auf Masse zieht, um das Relais anziehen zu lassen.

Du bildest quasi mit einer direkten Masseverbindung nur die OC Strecke über das MEG nach, aber da passiert nix bei.

 

Das Relais liegt ja mit der anderen Seite der Wicklung  gegen 12 Volt.

Wen also eine hochohmige Verbindung bzw. keine Ansteuerung auf der Ansteuerleitung existiert, dann wirst Du an dem Pin 11 bzw. auf dieser Leitung immer 12 Volt messen, aber eben die 12 Volt, die über das Relais kommen.

Der OC Treiberbaustein stellt einfach eine niederohmige Verbindung zur Masse her, das wird in der KFZ Technik relativ oft so gemacht, weil dies eine beliebte Möglichkeit ist, über einen OC Treiber auch andere Spannungen schalten zu können, das können auch mehr als 12 Volt sein, als im MEG die Betriebsspannung ist.

bearbeitet von Ahnungslos

Diesen Beitrag teilen


Link zum Beitrag
Auf anderen Seiten teilen
vor 5 Stunden schrieb Ahnungslos:

Bist Du Dir sicher mit dem Pin 1, Könnte auch ein Darstellungsfehler im Stromlaufplan sein!

 

Oh je, da hast du Recht! Die zweite "1" ist in meinem Plan auch so nah an den Strich der Leitung gerutscht, dass sie kaum zu erkennen ist.

Also ist Pin 11 an Stecker 5 korrekt, nicht Pin 1. Sorry :classic_sad:

 

bearbeitet von 450-3

Diesen Beitrag teilen


Link zum Beitrag
Auf anderen Seiten teilen
vor 7 Minuten schrieb 450-3:

Die zweite "1" ist in meinem Plan so nah an den Strich der Leitung gerutscht, dass sie kaum zu erkennen ist.

Also ist Pin 11 an Stecker 5 korrekt, nicht Pin 1. Sorry :classic_sad:

 

Das dachte ich mir schon, das ist mir nämlich auch schon passiert!

Ich glaube, Du hattest mich damals sogar drauf hingewiesen! 😉

Von daher steht es jetzt 1:1.  😁

 

vor 20 Minuten schrieb Ahnungslos:

Allerdings kann man hier die zweite 1 der 11 auch leicht übersehen, weil die Leitungskreuzung dazu verleitet.

bearbeitet von Ahnungslos

Diesen Beitrag teilen


Link zum Beitrag
Auf anderen Seiten teilen

Werd heut Abend das SAM ausbauen und wie vorgeschlagen die Stecker nachlöten.

Mal schauen mit welchem ergebnis

Diesen Beitrag teilen


Link zum Beitrag
Auf anderen Seiten teilen

schaffs heute nicht mehr, melde mich aber sobald ich die Stellen nachgelötet hab

Diesen Beitrag teilen


Link zum Beitrag
Auf anderen Seiten teilen

heut mittag hab ich es mal geschaft, mich um den  kleinen zu kümmern

die gute Nachricht, er läuft. Die schlechte: ich trau der Sache nicht

aber der Reihe nach:

SAM hab ich 11-3 und 11-5 komplett nachgelötet. Nix auffälliges an den Lötstellen, Steckern und Pins. Aber egal

SAM  wieder eingebaut und mal gelauscht, keine Pumpe läuft

Also Masse auf 11-5, PIN 11 gegeben. Relais schaltet und Pumpe läuft. Also SAM schon mal ok

Stecker vom Motorsteuergerät runter und Leitung gemessen, alles ok

Hm was nun. Also mal Delphi angeschlossen und Fehler ausgelesen, natürlich diverse

drunter waren diverse wegen Unterspannung,

aber zwei geben mir zu denken:

Kraftstoff-Füllstand Leitungsbruch sporadisch - kann passiert sein als ich die Pumpe aus dem Tank hatte

aber die hier: "reversible Kraftstoffsicherheitsabschaltung: Masseschluss oder Stromkreis offen - sporadisch"

Fehler hab ich gelöscht und: Smart springt an. Kleine Probefahrt, scheint alles ok zu sein.

Nur was war der Auslöser?

Mir ist nicht bekannt, dass der Smart nen Crash-Schalter oder so was hat wie bei manchen anderen Autos und er dann die Pumpe abschaltet. Hab gedacht das passiert nur bei extrem niedrigem Diesel-Stand im Tank.

Ach ja, beim Abschleppen hat er ein Ei in der Tankanzeige gezeigt, nach Wiedereinbau der Pumpe in den Tank waren es zwei. Aber auf jeden Fall nicht leer. Schwimmer hab ich auch manuell getestet, der reagiert im Display. Vielleicht kommt die Meldung daher. Dann ist immer noch der Grund fürs ausgehen im Dunkeln?

Höchstens ne Kombi aus Stecker nachlöten und Kontaktproblem im Stecker des Motorsteuergerätes. oder sonstwas

 

 

Diesen Beitrag teilen


Link zum Beitrag
Auf anderen Seiten teilen

Natürlich hat der Smart sowas. Was meinst du wie sonst die Airbags auslösen. 

 

Die Schaltung der Kraftstoffpumpe übers Motorsteuergerät wird ja eben gemacht um die Kraftstoffversorgung im Crashfall oder wenn der Motor aus geht zu trennen. 

Sonst könnte man die Pumpe auch einfach über Klemme 15 schalten. 

 

Warum nun bei dir die Sicherheitsabschaltung aktiviert wurde kann man aus der Ferne natürlich nicht beurteilen. 

 

Weiterfahren und beobachten würde ich sagen. 


Smart 450 Cabrio 2002 599 71 PS 

Smart 451 2007 Turbo Cabrio 115 PS 

Seres 3 

 

 

 

Diesen Beitrag teilen


Link zum Beitrag
Auf anderen Seiten teilen
Am 12.2.2023 um 11:41 schrieb Funman:

 

porphy... profi... äh... vorbeugend

Prophylaktisch, einfacher geht aber "präventiv".😁

Diesen Beitrag teilen


Link zum Beitrag
Auf anderen Seiten teilen
vor 9 Stunden schrieb maxpower879:

Natürlich hat der Smart sowas. Was meinst du wie sonst die Airbags auslösen. 

das ist mir klar, der Airbag ist ja aber nicht ausgelöst

hab mich aber mal wieder etwas umständlich ausgedrfückt: die etwas älteren Ducatos als Beispiel hatten noch einen mechanischen Schalter im Motorraum hinter der Batterie, der nur die Kraftstoffzufuhr abgeschaltet hat. Sowas meinte ich, also einen getrennten Schalter der nur die Pumpe abschaltet. Beim Smart geht ja aber fast nix mechanisch.

vor 9 Stunden schrieb maxpower879:

Sonst könnte man die Pumpe auch einfach über Klemme 15 schalten. 

also bekommt die Pumpe eigentlich immer vom Steuergerät Strom fördert und wird nicht durch irgendeine  Bedingung von einem Sensor oder sonstwas freigegeben, wenn ich das richtig versteh. Gibt ja im Netz diverse Einträge wo sie das tatsächlich machen über Klemme 15. Das muss nicht sein.

vor 9 Stunden schrieb maxpower879:

Warum nun bei dir die Sicherheitsabschaltung aktiviert wurde

Dann ist der Fehler tatsächlich die Abschaltung und hat nichts mit Füllstand oder spinnender Pumpe zu tun.

Hab schon überlegt, einfach vorbeugend mal die Pumpe auszutauschen, wenn unten eh alles offen ist.

 

Werd den wohl mal ne Weile selber fahren und beobachten was da geht. Stecker im Steuergerät sah auch nicht irgendwie auffällig aus

Diesen Beitrag teilen


Link zum Beitrag
Auf anderen Seiten teilen

noch so ein Gedanke, einen Fehler hatte ich auch noch "Kraftstoffdruckregelventil Druck zu niedrig, sporadisch"

den hab ich interpretiert dass er davon kam als die Pumpe nicht lief

oder vertu ich mich und der hat zur Abschaltung geführt?

Diesen Beitrag teilen


Link zum Beitrag
Auf anderen Seiten teilen
vor 2 Stunden schrieb oli-e:

also bekommt die Pumpe eigentlich immer vom Steuergerät Strom fördert und wird nicht durch irgendeine  Bedingung von einem Sensor oder sonstwas freigegeben, wenn ich das richtig versteh.

Janee, zumindest wird sie vom Steuergerät ein- und ausgeschaltet. Wenn der Motor nicht läuft, ist sie auch ausgeschaltet.

 

vor einer Stunde schrieb oli-e:

"Kraftstoffdruckregelventil Druck zu niedrig, sporadisch"

den hab ich interpretiert dass er davon kam als die Pumpe nicht lief

Wenn aus irgendeinem Grund der Kraftstoffdruck nicht erreicht wird, z.B. auch wegen Tank leer, dann kommt ein Fehler "Raildruckregelung" oder so. Der kann je nach Diagnosegerät auch anders heißen. Ich vermute, das ist der Fehler den du gesehen hast.


705 Kilometer mit 19,43 Litern sind 2,75 Liter/100 Km.

Diesen Beitrag teilen


Link zum Beitrag
Auf anderen Seiten teilen
vor 1 Minute schrieb Funman:

Wenn aus irgendeinem Grund der Kraftstoffdruck nicht erreicht wird, z.B. auch wegen Tank leer, dann kommt ein Fehler "Raildruckregelung" oder so.

alles klar, das kommt dann also tatsächlich daher, dass die Pumpe nicht gearbeitet hat. Und niicht davon, dass der Raildruck Sensor keinen Druck gemeldet hat und dann die Pumpe abgeschaltet wurde. War nur so ein Gedanke.

 

Bleibt immer noch die Frage warum das Steuergerät die Pumpe abgeschaltet hat.

Hab noch einiges hier gelesen zum Thema Crash-Sensor: Demnach wird der Airbag nur bei stärkeren Unfällen ausgelöst, bei kleineren nur die Dieselpumpe abgeschaltet.

Sensor sitzt ja wohl im Airbag-Steuergerät.

Wobei meine Frau schwört, sie hätte nicht einmal ein Schlagloch erwischt. Die Strasse dort ist auch absolut eben und hat noch nicht mal nen Randstein.

 

Echt seltsam, mir gehen die Ideen aus und Frau weigert sich zu fahren bis ich sagen kann was der Grund war

 

Diesen Beitrag teilen


Link zum Beitrag
Auf anderen Seiten teilen

schlechte Masseverbindungen sind zumindest beim Roadster ein sprudelnder Quell für allerlei Fehler.
Speziell der Massepunkt im linken hinteren Radhaus oben, ca 6 Masseleitungen.
Weiss nicht, ob die Kugel da ähnlich ist.

 

LG, Peter

Diesen Beitrag teilen


Link zum Beitrag
Auf anderen Seiten teilen

schau ich gerne später mal nach. Bin mir grad nicht sicher, aber sitzen glaub im Bereich des Luftfilters

Diesen Beitrag teilen


Link zum Beitrag
Auf anderen Seiten teilen

sorry, dass ich mich erst jetzt wieder melde,

hab den Smart in der Zwischenzeit fast jeden selber gefahren, bislang immer alles ok.

Dann heut morgen den kleinen vollgetankt und noch ca. 20 km gefahren, abgestellt und die Förderpumpe läuft wierder nicht, springt nicht an.

Hab den Laptop dabei gehabt und ihn gleich ausgelesen. Diesmal aber kein Fehler, lediglich "AGR Stellglied Masseschluss", das bezieh ich aber nicht auf die Dieselpumpe.

Somit konnt ich ihn grad auch nicht wieder starten, muss ihn heut mittag erstmal abschleppen und nachschauen.

als erstes werd ich wohl im SAM mal nachschauen ob ich die Pumpe ansteuern kann durch überbrücken, aber ich glaub nicht dran.

Glaub jetzt wechsel ich doch die Pumpe im Tank - einfach auf Verdacht, hab mittlerweile eine auf Reserve hier leigen.

Kann mir nur vorstellen dass der Motor der Pumpe irgendeinen ab hat, dass er in seltenen Fällen nicht tut.

Massekabel sahen eigentlich gut aus, nehm ich mir aber auch noch genauer vor.

Echt seltsam die Sache.

ICh werd berichten (ob ich ein Feuerchen drunter mach oder einen Fehler find)

Ein gutes hats ja, ist mir selber passiert und nicht meiner Frau.

Mit Star auslesen bei Benz - weiss nicht, ob das was bringt

Diesen Beitrag teilen


Link zum Beitrag
Auf anderen Seiten teilen
vor 22 Minuten schrieb oli-e:

Glaub jetzt wechsel ich doch die Pumpe im Tank - einfach auf Verdacht, hab mittlerweile eine auf Reserve hier liegen.

Kann mir nur vorstellen dass der Motor der Pumpe irgendeinen ab hat, dass er in seltenen Fällen nicht tut.

 

Naja, wenn der Motor der Pumpe wie damals keinen Strom bekommen sollte, dann kann er nicht laufen. 😉

Das solltest Du als erstes noch mal verifizieren!  🙂

 

Am 11.2.2023 um 21:10 schrieb oli-e:

Dieselpumpe im Tank läuft nicht und bekommt keinen Strom.

bearbeitet von Ahnungslos

Diesen Beitrag teilen


Link zum Beitrag
Auf anderen Seiten teilen

Erstelle ein Benutzerkonto oder melde dich an, um zu kommentieren

Du musst ein Benutzerkonto haben, um einen Kommentar verfassen zu können

Benutzerkonto erstellen

Neues Benutzerkonto für unsere Community erstellen. Es ist einfach!

Neues Benutzerkonto erstellen

Anmelden

Du hast bereits ein Benutzerkonto? Melde dich hier an.

Jetzt anmelden

  • Der letzte Post

    • Eine Rückmeldung nach einem halben Jahr, denn ich hatte die Möglichkeit, das endlich mal an einem Live-Objekt zu testen. Aufgabe war es, auf einem neuen Laptop ohne seriellen Anschluss eine C3 einzurichten. Mir standen 2 Adapter zur Auswahl, der eine mit FTDI-Chipsatz, der andere mit einem Prolific PL2303 Chipsatz. Fazit: der Adapter mit dem FTDI-Chipsatz funktioniert, der andere nicht. Wichtig dabei ist aber: es muss ein echter FTDI-Chipsatz sein. Es gibt leider China-Clones, wo bei der Treiberinstallation der original FTDI-Treiber den Clone erkennt und deaktiviert.   Mir wurde dieser FTDI-Adapter zur Verfügung gestellt.
  • Forenstatistik

    • Themen insgesamt
      152.907
    • Beiträge insgesamt
      1.610.712
×
×
  • Neu erstellen...

Wichtige Information

Wir haben Cookies auf Ihrem Gerät platziert, um die Bedinung dieser Website zu verbessern. Sie können Ihre Cookie-Einstellungen anpassen, andernfalls gehen wir davon aus, dass Sie damit einverstanden sind.